在当下的建筑中,玻璃幕墙的运用之广相信大家都是有目共睹的。所以,玻璃幕墙一直是我们讨论的重点。从最初的玻璃幕墙介绍、到玻璃幕墙的分类、再到玻璃幕墙的清洗和护理方式等等,这些都是我们已经讨论过很多遍的问题。但是,我们从来没有认认真真全面的为大家带来过这些玻璃幕墙的安装施工内容。所以,今天就为大家带来常见的全玻璃幕墙的安装施工步骤,希望能够对大家有用!
一、施工准备
(一)技术准备:技术资料收集,现场土建设计资料收集和土建结构尺寸测量,设计和施工方案确定。
(二)材料及机具准备:主要材料质量检查(玻璃的尺寸规格是否正确,金属结构构件的材质是否符合设计要求,构件是否平直,加工尺寸、精度、孔洞位置是否满足设计要求)、主要施工机具检查、搭脚手架。

二、吊挂式全玻璃幕墙安装施工
(一)放线定位
1.测量放线
(1)幕墙定位轴线的测量放线必须与主体结构的主轴线平行或垂直,以免幕墙施工和室内外装饰施工发生矛盾,造成阴阳角不方正和装饰面不平行等缺陷。
(2)要使用高精度的激光水准仪、经纬仪,配合用标准钢卷尺、重锤、水平尺等复核。对高度大于7m的幕墙,还应反复2次测量核对,以确保幕墙的垂直精度。要求上、下中心线偏差小于1~2mm.
(3)测量放线应在风力不大于4级的情况下进行,对实际放线与设计图之间的误差应进行调整、分配和消化,不能使其积累。
2.放线定位
全玻璃幕墙是直接将玻璃与主体结构固定,那么应首先将玻璃的位置弹到地面上,然后再根据外缘尺寸确定锚固点。

(二)上部承重钢构安装
(1)注意检查预埋件或锚固钢板的牢固,选用的锚栓质量要可靠,锚栓位置距离钢筋混凝土构件边缘要满足设计要求,钻孔孔径和深度要符合锚栓厂家的技术规定,孔内灰渣要清吹干净。
(2)每个构件安装位置和高度都应严格按照放线定位和设计图纸要求进行。最主要的是承重钢横梁的中心线必须与幕墙中心线相一致,并且椭圆螺孔中心要与设计的吊杆螺栓位置一致。
(3)内金属扣夹安装必须通顺平直。要用分段拉通线校核,对焊接造成的偏位要进行调直。外金属扣夹要按编号对号入座试拼装,同样要求平直。内外金属扣夹的间距应均匀一致,尺寸符合设计要求。
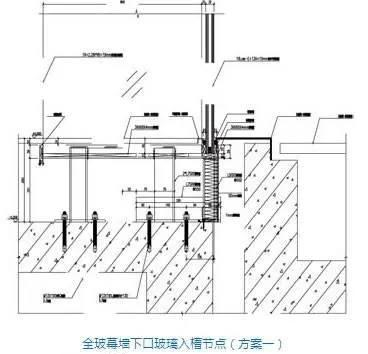
(三)下部和侧边边框安装
要严格按照放线定位和设计标高施工,所有钢结构表面和焊缝刷防锈漆。将下部边框内的灰土清理干净。在每块玻璃的下部都要放置不少于2块氯丁橡胶垫块,垫块宽度同槽口宽度,长度不应小于100mm.

(四)玻璃安装就位
1.玻璃吊装
(1)再一次检查玻璃的质量,尤其要注意玻璃有无裂纹和崩边,吊夹铜片位置是否正确。用干布将玻璃的表面浮灰抹净,用记号笔标注玻璃的中心位置。
(2)安装电动吸盘机。电动吸盘机必须定位,左右对称,且略偏玻璃中心上方。
(3)试起吊。电动吸盘机必须定位,然后应先将玻璃试起吊,将玻璃吊起2—3cm,以检查各个吸盘是否都牢固吸附玻璃。
(4)在玻璃适当位置安装手动吸盘、拉缆绳索和侧边保护胶套。
(5)在要安装玻璃处上下边框的内侧粘贴低发泡间隔方胶条,胶条的宽度与设计的胶缝宽度相同。

2.玻璃就位
(1)吊车将玻璃移近就位位置后,使玻璃对准位置徐徐靠近。
(2)上层工人要把握好玻璃,防止玻璃在升降移位时碰撞钢架。利用吊挂电动吸盘的手动倒链将玻璃徐徐吊高,使玻璃下端超出下部边框少许。此时,下部工人要及时将玻璃轻轻拉入槽口,并用木板隔挡,防止与相邻玻璃碰撞。另外,有工人用木板依靠玻璃下端,保证在倒链慢慢下放玻璃时,玻璃能被放入到底框槽口内,要避免玻璃下端与金属槽口磕碰。
(3)玻璃定位。安装好玻璃吊夹具,吊杆螺栓应放置在标注在钢横梁上的定位位置。反复调节杆螺栓,使玻璃提升和正确就位。
(4)安装上部外金属夹扣后,填塞上下边框外部槽口内的泡沫塑料圆条,使安装好的玻璃有临时固定。

(五)注密封胶
(1)所有注胶部位的玻璃和金属表面都要用丙酮或专用清洁剂擦拭干净,不能用湿布和清水擦洗,注胶部位表面必须干燥。沿胶缝位置粘贴胶带纸带,防止硅胶污染玻璃。
(2)要安排受过训练的专业注胶工施工,注胶时应内外双方同时进行,注胶要匀速、匀厚,不夹气泡。注胶后用专用工具刮胶,使胶缝呈微凹曲面。
(3)耐候硅酮嵌缝胶的施工厚度应介于3.5~4.5mm之间,胶缝的宽度通过设计计算确定,最小宽度为6mm,常用宽度为8mm,对受风荷载较大或地震设防要求较高时,可采用10mm或12mm。

(六)表面清洁和验收
将玻璃内外表面清洗干净,再一次检查胶缝并进行必要的修补。
施工注意事项:
吊挂式全玻璃幕墙由于系无框架幕墙,而且单块玻璃面积也较大,因此,施工时应特别注意以下几点:
*玻璃磨边。玻璃的加工一定要将上下端磨平,不要因上下端不外露,而忽视了质量要求。玻璃在生产和加工过程中,存在有内应力。玻璃在吊装中下部要临时落地受力;在玻璃上端有吊夹铜片,局部应力很大。如果边缘不平整,玻璃在使用中复杂的外力和内应力共同作用下容易产生裂纹。
*玻璃的包装。由于玻璃尺寸较大,一般每2块装1木箱,木包装箱一定要牢固,设计好吊装点。玻璃在包装箱内除四周要用聚苯乙烯泡沫板塞紧外,玻璃和玻璃之间也不能简单用纸张分隔,一定要用双面巾聚苯乙烯泡沫板塞紧。玻璃包装箱在运输、吊装过程中,里面的玻璃不能有移动。尤其要注意贴有吊夹铜片的端面分别放置在两头,要防止它们受外力的冲击,而导致玻璃破裂。
*内外夹扣设计。在设计玻璃内外夹扣和边框时,要密切与其他专业施工配合,要防止在安装好玻璃幕墙后,其他专业施工又在上方焊接或在夹扣上钻孔。因为其他专业施工队不了解玻璃幕墙的特殊构造,只考虑自己专业施工的方便,而焊接火花焊渣飞溅到玻璃上会造成玻璃不可恢复的损害。其他专业施工人员更应注意防止工具物件坠落,以免造成玻璃破裂。
